Продается 2-х комн. квартира, 62.7 кв.м., 4/10 эт
Обзор№ - 17487
| Стоимость | 6 500 000 |
|---|---|
| Ремонт | Требуется ремонт |
| Балкон | 2 лоджии |
| Онлайн показ | могу провести |
| Статус Недвижимости Авито | Квартира |
| Право собственности | Посредник |
| Тип парковки | Открытая во дворе |
| Способ связи avito | По телефону и в сообщениях |
| Тип дома cian | Кирпичный |
| Комнат в квартире | 2 |
| Площадь, кв.м. | 62.7 |
| Жилая площадь | 35 |
| Площадь кухни, кв.м. | 10.7 |
| Этаж | 4 |
| Этажность | 10 |
| Материал стен | Кирпич |
Адрес
| Населенный пункт | Калуга |
|---|---|
| Район города | Силикатный |
| Улица | улица Гурьянова |
| Номер дома | 67к2 |
В избранное Продаётся 2-комнатная квартира
Свободная продажа просторной двухкомнатной квартиры с двумя лоджиями.
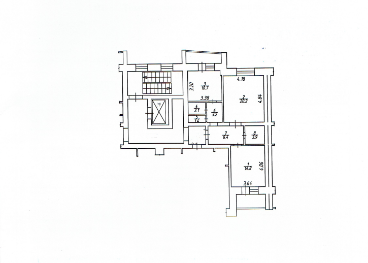
Кирпичный дом 2008 года. Общая площадь 62,7 кв.м, кухня 10,7 кв.м, комнаты 20,2 + 14,8 кв.м, прихожая 6,4 кв.м, коридор 3,2 кв.м, кладовая 1,4 кв.м, ванная комната 3,2 кв.м, туалет 2,1 кв.м, лоджии 4,3 + 4,1 кв.м.
Коммунальные платежи полностью (без интернета) летом до 4500 руб, зимой до 8000 руб.
Один взрослый собственник с 2022 года. Квартира без обременений, прописанных нет.
Ул. Гурьянова д.67 корпус 2.
№ 17487















































